|
Tip ponude:Prodaja Cijena kvadrata:3,690.00 €/m² |
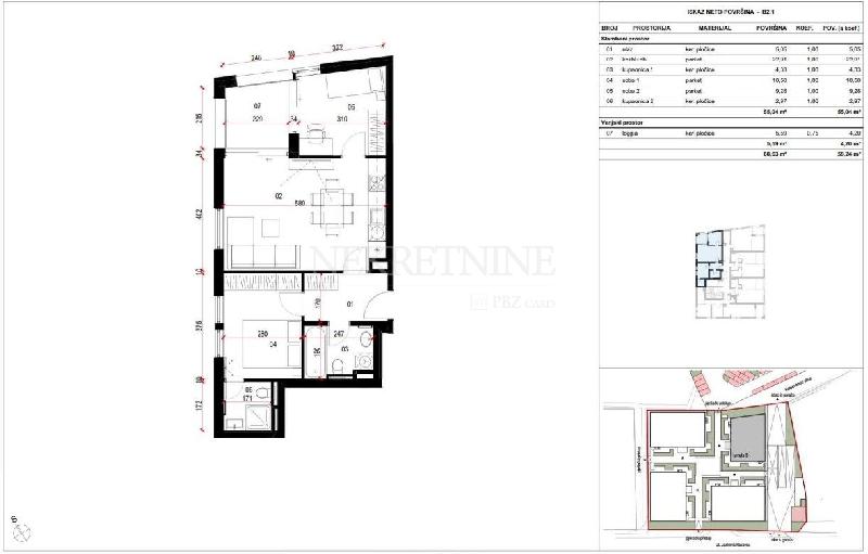
Broj soba:3 Godina izgradnje:2028 Cijena:218,595.60 € |
Površina:59.24 m² Stanje:U izgradnji
|
|
Orijentacija:Zapad,Sjever |
Grijanje: |
Stolarija: |
|
Blizina centra:DA |
Blizina dućana:DA |
Blizina plaže:DA |
|
Blizina škole:DA |
Centar mjesta/grada:DA |
Burza nekretnina djeluje na hrvatskom tržištu od 1996.g., organizirana je kao servis članova - poslovnih subjekata u djelatnostima vezanim za poslovanje nekretninama s područja Hrvatske, kojima pruža potporu u svakodnevnom poslovanju, te istovremeno omogućuje da se njihova međusobna suradnja odvija na najbrži i najjednostavniji način.
Temeljem Kodeksa etike poslovanja članovi Burze podržavaju profesionalno i korektno poslovanje na tržištu i odnose prema klijentima i drugim subjektima u djelatnosti.
Upišite svoju e-mail adresu.