,
  , , slika 2
  , , slika 2
  , , slika 2
  , , slika 2
  , , slika 2
  , , slika 2
  , , slika 2
stan, Umag, Umag,
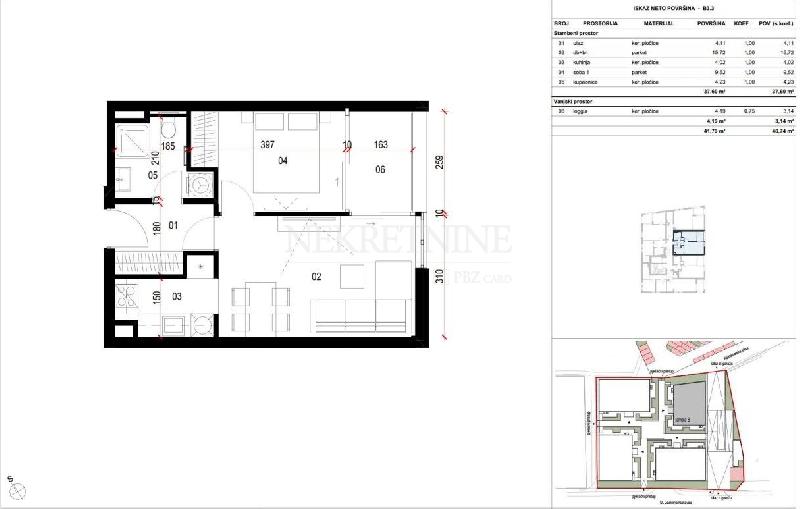
UMAG - projekt novogradnje Planirana je izgradnja četiri višestambene građevine sa ukupno 192 stana. Svaki od 4 odvojena volumena sadrži vertikalnu jezgru, a svaka jezgra stubište i dizalo koje povezuje podzemne i nadzemne etaže. Strukturu stanova u projektu čine po pet stanova na svakoj etaži, stanovi su sobnosti od 2-sobnih do 5-ero sobnih, od prizemlja do osmog kata (stanovi se po vertikali ponavljaju) svakog pojedinog volumena (A, B, C i D), dok se na devetom katu nalaze po tri stana u svakom nadzemnom volumenu. Planirani rok završetka/useljenja 30.06.2028. Površina stanova je u rasponu od 37,63m² do 130,60m² Cijena stanova, ovisno o etaži i orijentaciji, je u rasponu od 3.490,00 €/m² do 4.490,00 €/m² Uz svaki stan je vezano garažno parkirališno mjesto, cijena garažnog parkirališnog mjesta je u rasponu od 2.990,00 €/m² do 3.190,00 €/m² (prema obračunskoj površini, koef. 0,5). Stan 40,73 m2 (3.990,00 €/m2) - 162.512,70 € GPM 6,52 m2 (2.990,00 €/m2) - 19.494,80 €   _______________________________________       Ukupno                                            182.007,50 € Za prvih 50 kupaca, koji najkasnije do 30.04.2026. uplate kaparu, odobrava se popust od 5% na ukupnu kupoprodajnu cijenu. Po potpisu Ugovora plaća se 20% kupoprodajne cijene kao kapara ostatak kupoprodajne cijene plaća se po završetku izgradnje. Ovisno o načinu plaćanja moguće je ostvariti dodatan popust do 8% na uplate izvršene iznad iznosa kapare. NAPOMENA: Kupac plaća agencijsku proviziju od 1% + PDV     

Tip ponude:Prodaja

Cijena kvadrata:3,990.00 €/m²

Broj soba:2

Godina izgradnje:2028

Cijena:162,512.70 €

Površina:40.73 m²

Stanje:U izgradnji

  

Orijentacija:Istok

Grijanje:

Stolarija:

Blizina centra:DA

Blizina dućana:DA

Blizina plaže:DA

Blizina škole:DA

Centar mjesta/grada:DA

Posrednik:

PBZ NEKRETNINE

Dodatne informacije: 01/6363-636, 01/6363-637

Ostali oglasi ovog oglašivača

ZATRAŽITE BESPLATAN KONTAKT

BESPLATNO ZATRAŽITE KONTAKT AGENTA




Provjeri rezultat


 
 
 
 

Koliko može vrijediti moja nekretnina?

Mogućnost direktnog kontakta agencije za detaljniju procjenu ovisno o lokaciji.
tri gumba e-mail adresa
Unesi podatke
saznaj cijenu
prodaj nekretninu

Zašto burza nekretnina?

  • Ponuda svih agencija članica na jednom mjestu
  • Više od 30 članica agencija na jednom mjestu
  • Samo provjerene nekretnine
  • Stvarne realizirane cijene nekretnina
  • Statistike/Trendovi
  • Profesionalni savjeti
  • 20 godina iskustva na tržištu nekretnina
  • Sve o tržištu nekretnina

O nama

Burza nekretnina djeluje na hrvatskom tržištu od 1996.g., organizirana je kao servis članova - poslovnih subjekata u djelatnostima vezanim za poslovanje nekretninama s područja Hrvatske, kojima pruža potporu u svakodnevnom poslovanju, te istovremeno omogućuje da se njihova međusobna suradnja odvija na najbrži i najjednostavniji način.

Temeljem Kodeksa etike poslovanja članovi Burze podržavaju profesionalno i korektno poslovanje na tržištu i odnose prema klijentima i drugim subjektima u djelatnosti.

Prijava na newsletter

Upišite svoju e-mail adresu.