Ovaj oglas možda više nije aktivan - provjerite u agenciji

  ,
  , , slika 2
  , , slika 2
  , , slika 2
  , , slika 2
  , , slika 2
  , , slika 2
  , , slika 2
  , , slika 2
  , , slika 2
  , , slika 2
  , , slika 2
  , , slika 2
  , , slika 2
  , , slika 2
apartman, Šibenik - Okolica, Brodarica,
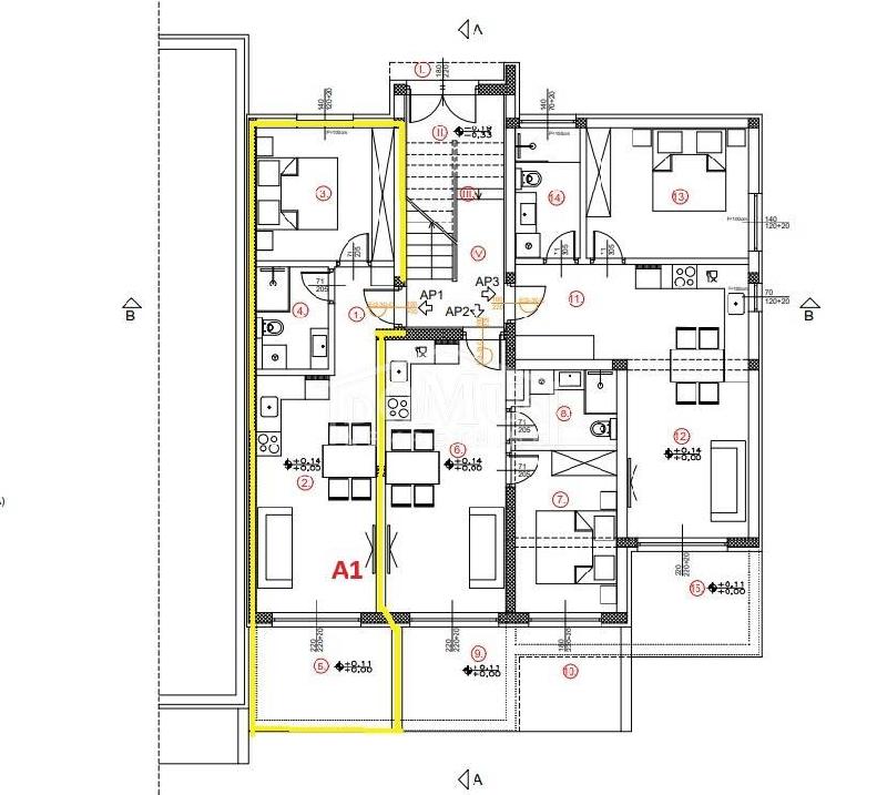
Brodarica, novogradnja, stambena zgrada s 7 stambenih jedinica. Zgrada ima ukupno tri etaže: prizemlje, prvi kat i drugi kat. Moderno je uređena i opremljena visokokvalitetnom opremom: podno grijanje u kupaonicama, klima-uređaji za grijanje i hlađenje u svakoj prostoriji, kvalitetna stolarija, prozori s električnim podizačima roleta, komarnici, protuprovalna vrata te moderna kupaonska oprema. Očekivani datum useljenja: ljeto 2027. godine. Stambena jedinica AP1 nalazi se u prizemlju zgrade i ima ukupnu površinu 50,27 m². Stan se sastoji od hodnika, kuhinje, blagovaonice, dnevnog boravka, kupaonice i jedne spavaće sobe. Apartman ima natkrivenu terasu (lođa) ukupne površine 9,22 m². Apartmanu pripada vrt površine 20 m² te dva parkirna mjesta. Zgrada je udaljena 600 m od plaže i 800 m od svih važnih sadržaja. Kupac ne plaća porez na promet nekretninama. ID CODE: 7312-AP1 Martina Silov Mob: 00385 95 587 8860 Tel: +385 22 444 620 Fax: +385 22 444 621 E-mail: martina@domus-nekretnine.hr http://domus-nekretnine.hr Diana Knežević Mob: 00 385 95 289 4518 Tel: +385 22 444 620 Fax: +385 22 444 621 E-mail: knezevic@domus-nekretnine.hr http://domus-nekretnine.hr Katarina Marasović Mob: 00 385 98 392 954 Tel: +385 22 444 620 Fax: +385 22 444 621 E-mail: catherine@domus-nekretnine.hr http://domus-nekretnine.hr

Tip ponude:Prodaja

Cijena kvadrata:3,023.00 €/m²

Broj soba:2

Godina izgradnje:2026

Cijena:152,000.00 €

Površina:50.00 m²

Stanje:

  

Orijentacija:

Grijanje:

Stolarija:

Posrednik:

DOMUS NEKRETNINE

Dodatne informacije: 022/444-620, 022/444-621, 098/392-954, 098/392-956

Ostali oglasi ovog oglašivača

ZATRAŽITE BESPLATAN KONTAKT

BESPLATNO ZATRAŽITE KONTAKT AGENTA




Provjeri rezultat


 
 
 
 

Koliko može vrijediti moja nekretnina?

Mogućnost direktnog kontakta agencije za detaljniju procjenu ovisno o lokaciji.
tri gumba e-mail adresa
Unesi podatke
saznaj cijenu
prodaj nekretninu

Zašto burza nekretnina?

  • Ponuda svih agencija članica na jednom mjestu
  • Više od 30 članica agencija na jednom mjestu
  • Samo provjerene nekretnine
  • Stvarne realizirane cijene nekretnina
  • Statistike/Trendovi
  • Profesionalni savjeti
  • 20 godina iskustva na tržištu nekretnina
  • Sve o tržištu nekretnina

O nama

Burza nekretnina djeluje na hrvatskom tržištu od 1996.g., organizirana je kao servis članova - poslovnih subjekata u djelatnostima vezanim za poslovanje nekretninama s područja Hrvatske, kojima pruža potporu u svakodnevnom poslovanju, te istovremeno omogućuje da se njihova međusobna suradnja odvija na najbrži i najjednostavniji način.

Temeljem Kodeksa etike poslovanja članovi Burze podržavaju profesionalno i korektno poslovanje na tržištu i odnose prema klijentima i drugim subjektima u djelatnosti.

Prijava na newsletter

Upišite svoju e-mail adresu.