,
  , , slika 2
  , , slika 2
  , , slika 2
  , , slika 2
  , , slika 2
apartman, Vodice, Vodice,
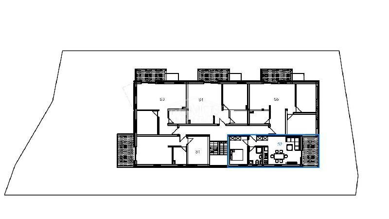
Vodice, novogradnja, atraktivna lokacija, stambena zgrada ima ukupno 14 stambenih jedinica. Stan SJ10 nalazi se na prvom katu zgrade, ukupne korisne površine 48,80 m², te se sastoji od ulaznog hodnika, kupaonice, jedne spavaće sobe, kuhinje i dnevnog boravka s izlazom na lođu od 9,65 m². Stan je modernog dizajna i funkcionalnog rasporeda, opremljen klima uređajima u dnevnom boravku i spavaćoj sobi, protuprovalnim ulaznim vratima, PVC stolarijom te modernom kupaonskom opremom. Stanu pripada jedno parkirno mjesto Udaljen je 800 m od mora te 500 m od centra grada i svih važnih sadržaja. Predviđeni datum useljenja je ljeto 2026. godine. Kupac je oslobođen poreza od 3 % na nekretninu. ID CODE: 7309-SJ10 Catherine Marasović Mob: 00 385 98 392 954 Tel: +385 22 444 620 Fax: +385 22 444 621 E-mail: catherine@domus-nekretnine.hr http://domus-nekretnine.hr Diana Knežević Mob: 00 385 95 289 4518 Tel: +385 22 444 620 Fax: +385 22 444 621 E-mail: knezevic@domus-nekretnine.hr http://domus-nekretnine.hr Martina Silov Mob: 00385 95 587 8860 Tel: +385 22 444 620 Fax: +385 22 444 621 E-mail: martina@domus-nekretnine.hr http://domus-nekretnine.hr

Tip ponude:Prodaja

Cijena kvadrata:3,893.00 €/m²

Broj soba:2

Godina izgradnje:2026

Cijena:190,000.00 €

Površina:48.00 m²

Stanje:

  

Orijentacija:

Grijanje:

Stolarija:

Posrednik:

DOMUS NEKRETNINE

Dodatne informacije: 022/444-620, 022/444-621, 098/392-954, 098/392-956

Ostali oglasi ovog oglašivača

ZATRAŽITE BESPLATAN KONTAKT

BESPLATNO ZATRAŽITE KONTAKT AGENTA




Provjeri rezultat


 
 
 
 

Koliko može vrijediti moja nekretnina?

Mogućnost direktnog kontakta agencije za detaljniju procjenu ovisno o lokaciji.
tri gumba e-mail adresa
Unesi podatke
saznaj cijenu
prodaj nekretninu

Zašto burza nekretnina?

  • Ponuda svih agencija članica na jednom mjestu
  • Više od 30 članica agencija na jednom mjestu
  • Samo provjerene nekretnine
  • Stvarne realizirane cijene nekretnina
  • Statistike/Trendovi
  • Profesionalni savjeti
  • 20 godina iskustva na tržištu nekretnina
  • Sve o tržištu nekretnina

O nama

Burza nekretnina djeluje na hrvatskom tržištu od 1996.g., organizirana je kao servis članova - poslovnih subjekata u djelatnostima vezanim za poslovanje nekretninama s područja Hrvatske, kojima pruža potporu u svakodnevnom poslovanju, te istovremeno omogućuje da se njihova međusobna suradnja odvija na najbrži i najjednostavniji način.

Temeljem Kodeksa etike poslovanja članovi Burze podržavaju profesionalno i korektno poslovanje na tržištu i odnose prema klijentima i drugim subjektima u djelatnosti.

Prijava na newsletter

Upišite svoju e-mail adresu.