,
  , , slika 2
  , , slika 2
  , , slika 2
apartman, Šibenik, Donje Ražine,
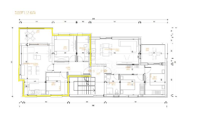
Novogradnja, dvosoban apartman ukupne korisne površine 63,30 m², nalazi se na drugom katu stambene zgrade koja ima ukupno šest stambenih jedinica. Lokacija nekretnine spaja šarm sela s blizinom mora – savršeno za one koji traže miran i ugodan život uz sve potrebne sadržaje. Apartman se sastoji od ulaznog hodnika, dvije spavaće sobe, jedne kupaonice te kuhinje s blagovaonicom i dnevnim boravkom s izlazom na natkrivenu terasu površine 8,25 m². Apartman je orijentiran na sjeveroistočnu stranu i ima jedno parkirno mjesto. Vrhunska moderna oprema od visokokvalitetnih materijala: klima uređaji u svim sobama, podno grijanje u kupaonici, električni podizači roleta i komarnici. Useljenje je predviđeno za početak 2027. godine. ID CODE: 7295-S3 Catherine Marasović Mob: 00 385 98 392 954 Tel: +385 22 444 620 Fax: +385 22 444 621 E-mail: catherine@domus-nekretnine.hr http://domus-nekretnine.hr Diana Knežević Mob: 00 385 95 289 4518 Tel: +385 22 444 620 Fax: +385 22 444 621 E-mail: knezevic@domus-nekretnine.hr http://domus-nekretnine.hr Martina Silov Mob: 00385 95 587 8860 Tel: +385 22 444 620 Fax: +385 22 444 621 E-mail: martina@domus-nekretnine.hr http://domus-nekretnine.hr

Tip ponude:Prodaja

Cijena kvadrata:3,500.00 €/m²

Broj soba:3

Godina izgradnje:2025

Cijena:221,550.00 €

Površina:63.00 m²

Stanje:

  

Orijentacija:

Grijanje:

Stolarija:

Posrednik:

DOMUS NEKRETNINE

Dodatne informacije: 022/444-620, 022/444-621, 098/392-954, 098/392-956

Ostali oglasi ovog oglašivača

ZATRAŽITE BESPLATAN KONTAKT

BESPLATNO ZATRAŽITE KONTAKT AGENTA




Provjeri rezultat


 
 
 
 

Koliko može vrijediti moja nekretnina?

Mogućnost direktnog kontakta agencije za detaljniju procjenu ovisno o lokaciji.
tri gumba e-mail adresa
Unesi podatke
saznaj cijenu
prodaj nekretninu

Zašto burza nekretnina?

  • Ponuda svih agencija članica na jednom mjestu
  • Više od 30 članica agencija na jednom mjestu
  • Samo provjerene nekretnine
  • Stvarne realizirane cijene nekretnina
  • Statistike/Trendovi
  • Profesionalni savjeti
  • 20 godina iskustva na tržištu nekretnina
  • Sve o tržištu nekretnina

O nama

Burza nekretnina djeluje na hrvatskom tržištu od 1996.g., organizirana je kao servis članova - poslovnih subjekata u djelatnostima vezanim za poslovanje nekretninama s područja Hrvatske, kojima pruža potporu u svakodnevnom poslovanju, te istovremeno omogućuje da se njihova međusobna suradnja odvija na najbrži i najjednostavniji način.

Temeljem Kodeksa etike poslovanja članovi Burze podržavaju profesionalno i korektno poslovanje na tržištu i odnose prema klijentima i drugim subjektima u djelatnosti.

Prijava na newsletter

Upišite svoju e-mail adresu.