,
  , , slika 2
  , , slika 2
  , , slika 2
  , , slika 2
  , , slika 2
  , , slika 2
  , , slika 2
  , , slika 2
  , , slika 2
  , , slika 2
  , , slika 2
  , , slika 2
  , , slika 2
kuća, Šibenik - Okolica, Žaborić,
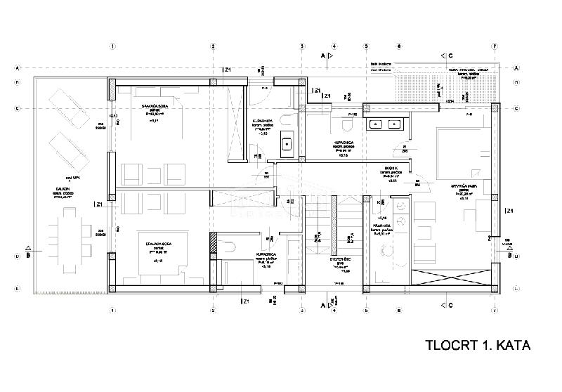
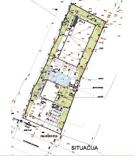
Novogradnja, moderna obiteljska vila sa velikim grijanim bazenom 32m2 (8m x 4m) i pogledom na more sa ukupno 256,96 m2 korisne površine. U prizemlju se nalazi ulaz, hodnik, jedna spavaća soba, jedna radna soba, kupaona, kuhinja sa blagovaonom i dnevni boravak sa izlazom na natkrivenu terasu sa koje se ide na bazen i sunčalište u vrlo ugodnom ambijentu sa pogledom na more. Unutarnje stepenice vode na prvi kat gdje se nalaze tri spavaće sobe, svaka soba sa vlastitom kupaonicom. Dvije sobe imaju prostranu zajedničku natkrivenu terasu, a jedna soba ima vlastiti balkon. Vila će biti opremljena vrhunskim kvalitetnim materijalima: vanjska ALU-Schuco stolarija, izo stakla tonirana, električni podizači roleta, komarnici, portafon, vodeno podno grijanje u cijeloj vili na dizalicu topline, klimatizacija (grijanje-hlađenje) u svim prostorijama, moderna kupaonska oprema, video nadzor, vanjska rasvjeta i još mnogo toga što odražava visoki standard vile. Vila će biti kompletno namještena, spremna za useljenje. Prostrani vanjski prostor uključuje tri parkirna mjesta, garažu za dva vozila, ljetnu kuhinju i ostavu. Udaljenost od mora samo 300m. ID CODE: 2769 Diana Knežević Mob: 00 385 95 289 4518 Tel: +385 22 444 620 Fax: +385 22 444 621 E-mail: knezevic@domus-nekretnine.hr http://domus-nekretnine.hr Catherine Marasović Mob: 00 385 98 392 954 Tel: +385 22 444 620 Fax: +385 22 444 621 E-mail: catherine@domus-nekretnine.hr http://domus-nekretnine.hr Martina Silov Mob: 00385 95 587 8860 Tel: +385 22 444 620 Fax: +385 22 444 621 E-mail: martina@domus-nekretnine.hr http://domus-nekretnine.hr

Tip ponude:Prodaja

Cijena kvadrata:6,226.00 €/m²

Broj soba:6

Godina izgradnje:2025

Cijena:1,600,000.00 €

Površina:256.00 m²

Stanje:

  

Orijentacija:

Grijanje:

Stolarija:

Posrednik:

DOMUS NEKRETNINE

Dodatne informacije: 022/444-620, 022/444-621, 098/392-954, 098/392-956

Ostali oglasi ovog oglašivača

ZATRAŽITE BESPLATAN KONTAKT

BESPLATNO ZATRAŽITE KONTAKT AGENTA




Provjeri rezultat


 
 
 
 

Koliko može vrijediti moja nekretnina?

Mogućnost direktnog kontakta agencije za detaljniju procjenu ovisno o lokaciji.
tri gumba e-mail adresa
Unesi podatke
saznaj cijenu
prodaj nekretninu

Zašto burza nekretnina?

  • Ponuda svih agencija članica na jednom mjestu
  • Više od 30 članica agencija na jednom mjestu
  • Samo provjerene nekretnine
  • Stvarne realizirane cijene nekretnina
  • Statistike/Trendovi
  • Profesionalni savjeti
  • 20 godina iskustva na tržištu nekretnina
  • Sve o tržištu nekretnina

O nama

Burza nekretnina djeluje na hrvatskom tržištu od 1996.g., organizirana je kao servis članova - poslovnih subjekata u djelatnostima vezanim za poslovanje nekretninama s područja Hrvatske, kojima pruža potporu u svakodnevnom poslovanju, te istovremeno omogućuje da se njihova međusobna suradnja odvija na najbrži i najjednostavniji način.

Temeljem Kodeksa etike poslovanja članovi Burze podržavaju profesionalno i korektno poslovanje na tržištu i odnose prema klijentima i drugim subjektima u djelatnosti.

Prijava na newsletter

Upišite svoju e-mail adresu.