,
  , , slika 2
  , , slika 2
  , , slika 2
  , , slika 2
  , , slika 2
  , , slika 2
  , , slika 2
  , , slika 2
  , , slika 2
  , , slika 2
  , , slika 2
  , , slika 2
  , , slika 2
  , , slika 2
  , , slika 2
  , , slika 2
  , , slika 2
  , , slika 2
  , , slika 2
apartman, Vodice, Vodice,
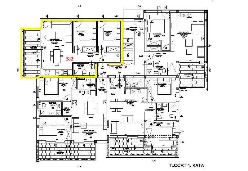
Vodice novogradnja, stambena zgrada sa ukupno 10 stambenih jedinica. Zgrada ima ukupno tri etaže: prizemlje, prvi kat i drugi kat. Zgrada je modernog dizajna, opremljena sa klima uređajima za grijanje i hlađenje u svakoj prostoriji, električnim podnim grijanjem u kupaonicama, protuprovalnim ulaznim vratima, PVC stolarijom, električnim podizačima roleta, komarnicima te modernom kupaonskom opremom. Predviđeni datum useljenja je kraj 2026. g. Kupac ne plaća porez na promet nekretninama. Stambena jedinica SJ2 nalazi se u prizemlju zgrade, ima korisnu površinu od 65,04 m². Stan se sastoji od ulaznog hodnika, kupaonice, dvije spavaće sobe, kuhinje s blagovaonicom i dnevnog boravka s izlazom na natkrivenu terasu. Stanu pripada jedno vanjsko parkirno mjesto. Zgrada se nalazi samo 800 m od plaže i 900 m od centra grada te svih važnih sadržaja. ID CODE: 7286-SJ2 Catherine Marasović Mob: 00 385 98 392 954 Tel: +385 22 444 620 Fax: +385 22 444 621 E-mail: catherine@domus-nekretnine.hr http://domus-nekretnine.hr Diana Knežević Mob: 00 385 95 289 4518 Tel: +385 22 444 620 Fax: +385 22 444 621 E-mail: knezevic@domus-nekretnine.hr http://domus-nekretnine.hr Martina Silov Mob: 00385 95 587 8860 Tel: +385 22 444 620 Fax: +385 22 444 621 E-mail: martina@domus-nekretnine.hr http://domus-nekretnine.hr

Tip ponude:Prodaja

Cijena kvadrata:3,690.00 €/m²

Broj soba:3

Godina izgradnje:2025

Cijena:240,000.00 €

Površina:65.00 m²

Stanje:

  

Orijentacija:

Grijanje:

Stolarija:

Posrednik:

DOMUS NEKRETNINE

Dodatne informacije: 022/444-620, 022/444-621, 098/392-954, 098/392-956

Ostali oglasi ovog oglašivača

ZATRAŽITE BESPLATAN KONTAKT

BESPLATNO ZATRAŽITE KONTAKT AGENTA




Provjeri rezultat


 
 
 
 

Koliko može vrijediti moja nekretnina?

Mogućnost direktnog kontakta agencije za detaljniju procjenu ovisno o lokaciji.
tri gumba e-mail adresa
Unesi podatke
saznaj cijenu
prodaj nekretninu

Zašto burza nekretnina?

  • Ponuda svih agencija članica na jednom mjestu
  • Više od 30 članica agencija na jednom mjestu
  • Samo provjerene nekretnine
  • Stvarne realizirane cijene nekretnina
  • Statistike/Trendovi
  • Profesionalni savjeti
  • 20 godina iskustva na tržištu nekretnina
  • Sve o tržištu nekretnina

O nama

Burza nekretnina djeluje na hrvatskom tržištu od 1996.g., organizirana je kao servis članova - poslovnih subjekata u djelatnostima vezanim za poslovanje nekretninama s područja Hrvatske, kojima pruža potporu u svakodnevnom poslovanju, te istovremeno omogućuje da se njihova međusobna suradnja odvija na najbrži i najjednostavniji način.

Temeljem Kodeksa etike poslovanja članovi Burze podržavaju profesionalno i korektno poslovanje na tržištu i odnose prema klijentima i drugim subjektima u djelatnosti.

Prijava na newsletter

Upišite svoju e-mail adresu.