




+5




+5Prodaja
Površina
Tip nekretnine
Kat
Sobe
kupaonice
Grijanje
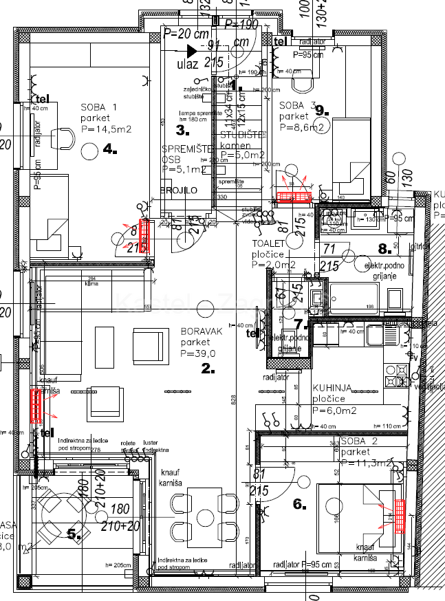
PENTHAUS TREŠNJEVKA Potpuno nova etaža u zgradi od ukupno tri nadzemne etaže. Zgrada i dvorište 2025. godine kompletno obnovljenI. Stan u zgradi na odličnoj lokaciji, 10 min hoda do Trešnjevačkog placa povučena od glavne prometnice. Stan se sastoji od zatvorenog dijela 97 m2 kojeg čine hodnik, kupaonica, wc, kuhinje s blagovaonom, veliki dnevni boravak s izlazom na terasu 8 m2, tri spavaće sobe, spremište. Stanu pripada parkirno mjesto u dvorištu 15m2. Vrhunski materijali i oprema: hrastov parket velikih dimenzija sa mat lakom vrhunska keramika 1. klase dimenzija 60 x 120 cm grijanje radijatorima preko kondenzacijskog bojlera hlađenje je putem split-klima jedinica koje su postavljene u svaku sobu renomiranog proizvođača LG, vanjska klima jedinica su smještena je na ravnom krovu zgrade sanitarije u kupaonicama klasa tip. Grohe, Hansgrohe i sl. walk in tuš sa zatvorenom tuš kabinom portafon ulazna vrata u stan protuprovalna, protupožarna i protudimna vrhunska PVC stolarija Salamander greenEvolution MD profil je elegantne moderne antracit boje, ugradbene dubine 76 mm s pet komora i tri brtve, te ispunjenim plinom argonom alu rolete na struju Kontakt: Siniša Čubrić, mob: 091 234 9877 ili mail: sinisa@kastel.hr
Prikazana lokacija je približna. Točna adresa bit će dostupna nakon kontakta s agentom.

Ime agenta
Siniša Čubrić
Kontakt telefon
+385 91 234 9877ID nekretnine
5457
BN kod
8976
Objavljeno