
Novo

Novo






Najam
Površina
Tip nekretnine
Kat
Sobe
kupaonice
Grijanje
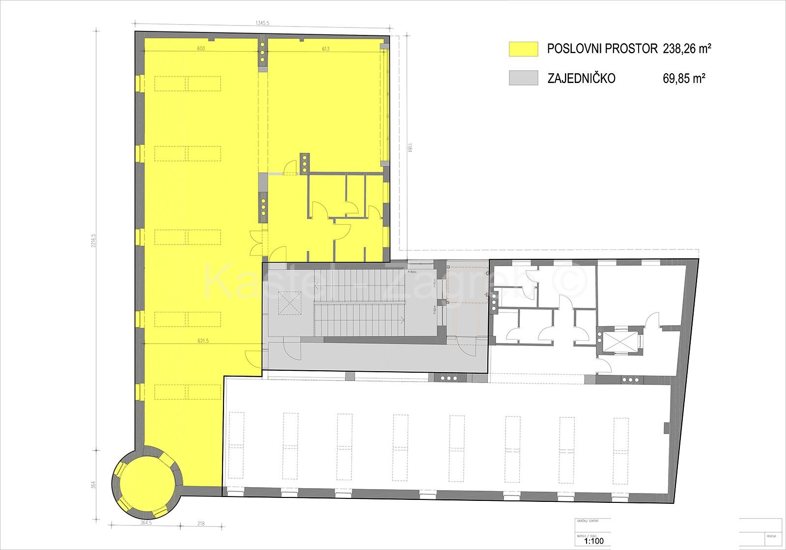
Prostrani „open space“ poslovni prostor u samom središtu grada, park Zrinjevac, površine 238,26m2. Daje se isključivo u dugoročni zakup od minimalno tri godine uz polog od tri mjesečne zakupnine. Prostor je koncipiran kao „open space“, smješten na 3. katu. U cijeni zakupa je i korištenje jednog parkirnog mjesta u dvorištu zgrade. Zgrada ima lift. Izuzetno atraktivna lokacija. Prostor je slobodan od 01.04.2026. Kontakt agenta: Andrea 091 234 9875, andrea@kastel.hr
Prikazana lokacija je približna. Točna adresa bit će dostupna nakon kontakta s agentom.

Ime agenta
Andrea Štern
Kontakt telefon
+385 91 234 9875ID nekretnine
5434
BN kod
8033
Objavljeno