









Prodaja
Površina
Tip nekretnine
Kat
Sobe
kupaonice
Grijanje
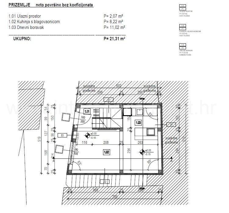
.::: Šibenik, novoizgrađena kuća u nizu :::. U strogom centru Šibenika prodaje se novogradnja – kuća u nizu sa 71,75m2 stambene površine. Objekt je trenutačno u izgradnji a rok mogućeg useljenja je krajem 2025. godine. Kuća se sastoji od tri etaže povezane unutarnjim stepeništem. Prizemlje sadrži ulazni prostor, kuhinju-blagovaonicu-dnevnu sobu. Na 1. katu nalazimo hodnik, spavaću sobu, WC/praonicu i terasu od 3,85m2. Na zadnjoj etaži smješteni su hodnik, spavaća soba i kupaonica. Kolni prilaz za manja vozila postoji ali nema mogućnosti parkiranja. Obilazak nekretnine moguć je uz prethodni dogovor i rezervaciju termina (minimalno dva dana unaprijed). Molimo pri telefonskom kontaktu obavezno navesti šifru objekta (ID nekretnine). Radujemo se Vašem pozivu.

Ime agenta
Marijana Laškarin
Kontakt telefon
099/ 213 21 09ID nekretnine
2410
BN kod
4933
Objavljeno